Zeichnungen für das Untergestell erstellt (Jonas)
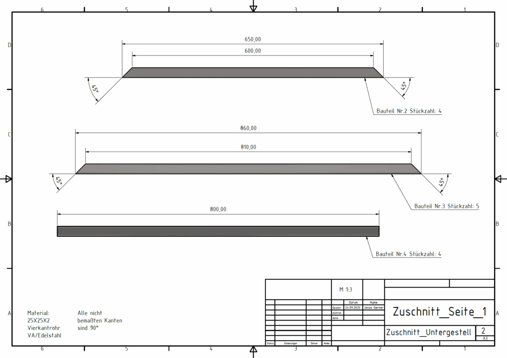
Anhand des 3D-Modelles des Untergestelles habe ich die Zeichnungen für die Fertigung des Gestelles angefertigt.



Anhand des 3D-Modelles des Untergestelles habe ich die Zeichnungen für die Fertigung des Gestelles angefertigt.


